Salta al contenuto principale
 
 

Tetti in legno su misura

Eleganti, pratici e antisismici

 
 

Le nostre case in legno

Il connubio perfetto tra uomo e ambiente

 
 

Costruzioni per esterni

Crea il tuo angolo di paradiso

Soluzioni su misura

Scopri i nostri prodotti

Arredo esterno

Acquista ora

Casette in legno e Garage

Acquista ora

Casette e giochi per esterno

Acquista ora

Casette in Metallo e Polietilene

Acquista ora

Mobili per Esterno

Acquista ora

Piscine

Acquista ora

Magazine

Esterno

Box per cavalli

Box doppio per cavalli Un perfetto equilibrio tra solidità, funzionalità ed estetica naturale: così nasce…
Casetta in legno
Esterno

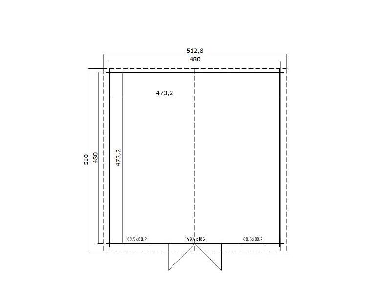
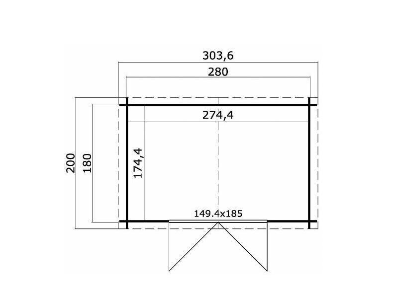
Casetta in legno Iris con porticato

Tra i modelli più apprezzati del nostro catalogo, la casetta in legno Iris si distingue…
Esterno

Nuove realizzazioni al Parco delle Fonti del Clitunno

Il legno, quando si inserisce in un contesto naturale, sa diventare parte integrante del paesaggio.…
Le nostre realizzazioni
Il pavimento Clap di Deco: eleganza e funzionalità
Esterno
Libreria ai giardini
Le nostre realizzazioni
Tetto in legno